91视频下载地址,91视频精选,91视频APP官网入口,91视频看污片免费版

    陆家嘴瑞明大厦出租920方俯瞰黄浦江

    分享
    22.39 万元/月
    • 单价:8.0元/㎡/天
    • 物业费:40.0元/㎡/月
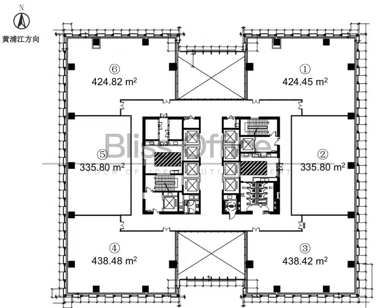
    920㎡
    建筑面积
    80-100人
    容纳工位
    标准交房
    装修
    • 浦 东-陆家嘴
    • 4号线-浦东大道、14号线-浦东南路
    • 瑞明大厦

    房源专属顾问为您服务

    杨亦晗Cassie

    13167276699
    预约看房

    公共交通

    Public transit

    瑞明大厦

    浦 东陆家嘴即墨路

    网站地图