Warning: mkdir(): No space left on device in /www/wwwroot/X29X30Z1.COM/func.php on line 127

Warning: file_put_contents(./cachefile_yuan/yid88.com/cache/fe/d40db/d39e4.html): failed to open stream: No such file or directory in /www/wwwroot/X29X30Z1.COM/func.php on line 115
中骏天悦 半层987平出租 标准交付 三面采光,中骏天悦租金|出租|租赁|办公室-blissoffice


    91视频下载地址,91视频精选,91视频APP官网入口,91视频看污片免费版

    中骏天悦 半层987平出租 标准交付 三面采光

    分享
    14.71 万元/月
    • 单价:4.9元/㎡/天
    • 物业费:35.0元/㎡/月
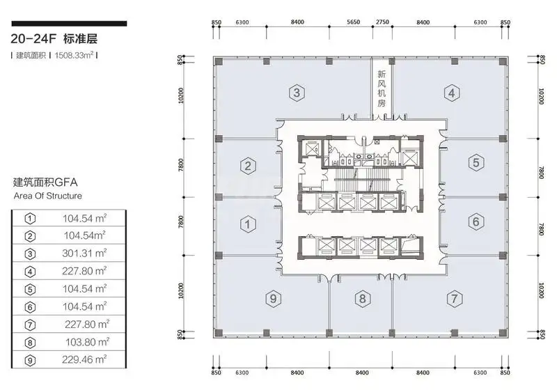
    987㎡
    建筑面积
    100
    容纳工位
    标准交房
    装修
    • 普 陀-真如
    • 11号线-真如、14号线-真如
    • 中骏天悦

    房源专属顾问为您服务

    徐佳乐Jerry

    13052210023
    预约看房

    公共交通

    Public transit

    中骏天悦

    普 陀真如固川路166弄

    网站地图